一、加氣混凝土隔墻板安裝必須按照一定的順序。沒有門窗洞口時,可以從一端開始依次進行安裝;有門窗洞口時,要先安裝門口兩側(cè)的板材,然后在按順序向兩側(cè)進行安裝。
二、洞口的兩側(cè)盡可能安裝整板,把切割后的小板(寬度小于600mm)安裝到離門窗洞口較遠的位置。這樣能提高后期安裝門窗后墻板的牢固性,可以有效的減少加氣混凝土墻板的開裂。最后一塊板的安裝需用角鋼固定。
三、板材頂部板縫要用彈性嵌縫材料,安裝完后要在頂部板縫處粘貼200mm寬的耐堿網(wǎng)格布,防止不同材料結(jié)合處因不同收縮比造成板縫開裂。板材底縫慢填1:3水泥砂漿。
二、洞口的兩側(cè)盡可能安裝整板,把切割后的小板(寬度小于600mm)安裝到離門窗洞口較遠的位置。這樣能提高后期安裝門窗后墻板的牢固性,可以有效的減少加氣混凝土墻板的開裂。最后一塊板的安裝需用角鋼固定。
三、板材頂部板縫要用彈性嵌縫材料,安裝完后要在頂部板縫處粘貼200mm寬的耐堿網(wǎng)格布,防止不同材料結(jié)合處因不同收縮比造成板縫開裂。板材底縫慢填1:3水泥砂漿。
加氣混凝土隔墻板安裝順序圖

加氣混凝土隔墻板安裝U型卡固定示意圖

加氣混凝土隔墻板安裝頂部構(gòu)造

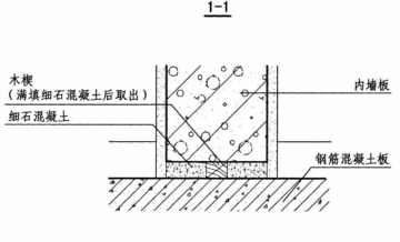
加氣混凝土隔墻板安裝底部處理構(gòu)造
